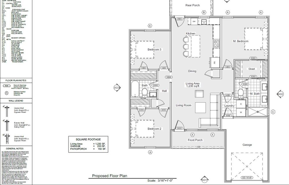
Residential New Construction WHAT WE DID New Garage Addition LOCATION Bowie, Tx PrevPreviousResidential New Construction NextResidential AdditionNext