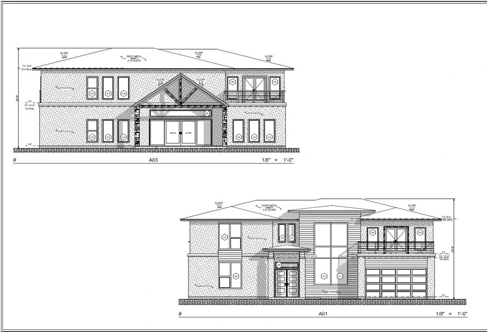
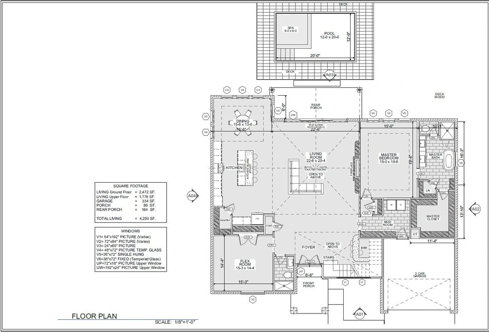
Modern New Construction WHAT WE DID New Construction LOCATION Dallas, Tx PrevPreviousResidential New Construction NextResidential Pool & Outdoor KitchenNext