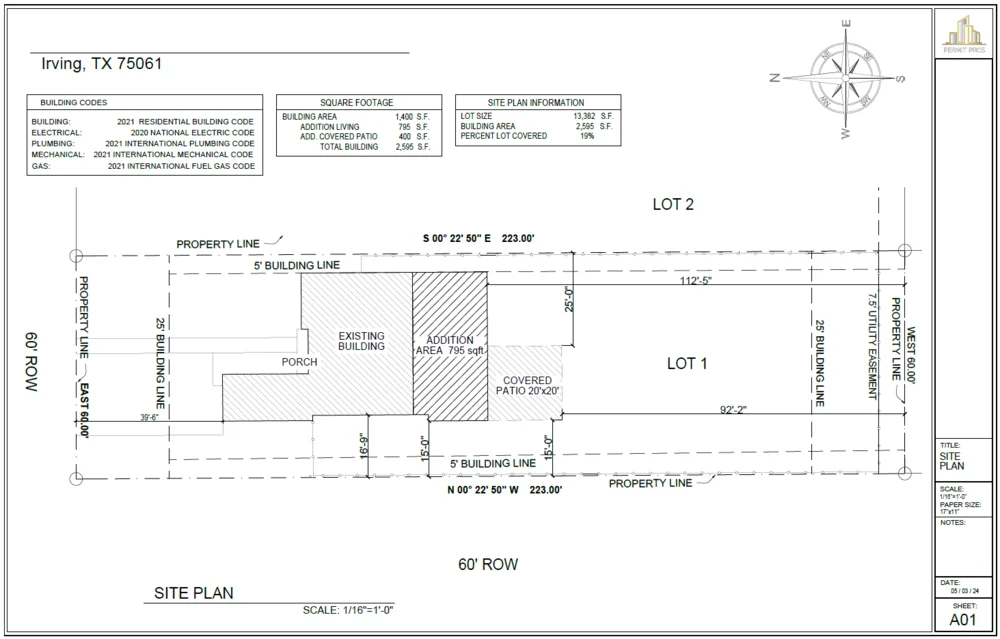
Living & Patio Addition WHAT WE DID Living Space and Patio Addition LOCATION Irving, Tx PrevPreviousCottage Style Construction NextOutdoor Living AdditionNext